发布产品/安装技术的知识文章 为您答疑解惑

日皮视频在线观看免费电子日皮视频APP安卓安装下载深化设计说明

返回列表 来源: 日皮视频在线观看免费日皮视频APP安卓安装下载专业生产厂家 发布日期: 2019.11.07

日皮视频在线观看免费电子--日皮视频APP安卓安装下载深化设计说明(供参考)

1.工程概况:

工程名称:xxxx项目

项目建设地点:xxxxxxx

建设面积:xxxxx平方米

结构形式:框架剪力墙结构

设计单位:xxxxxx

设计时间:xxxxxx

2.设计依据:

各市政主管部门对各阶段设计文件的审批意见;

《建筑防烟排烟系统技术标准》                                               GB 51251-2017;

《建筑设计防火规范》                                                        GB 50016-20142018年版);

《火灾自动报警系统设计规范》                                               GB 50116-2013;

《低压配电设计规范》                                                        GB 50054-2013;

《通用用电设备配电设计规范》                                               GB 50055-2011;

《民用建筑电气设计规范》                                               JGJ 16-2008;

其它有关国家及xx市现行的规范和标准;

土建设计单位各专业提供的设计资料。

3.深化设计范围:

本设计包括红线内所有单体建筑物的加压送风控制系统。

本工程普通送排风和排烟、补风等其他内容,不在本深化设计范围内。上述内容应以土建设计单位的设计文件为准。

本深化设计文件的编制,基于本工程已通过国家和消防主管部门审查的土建设计单位施工图阶段设计文件为基础。如有差异,应以土建设计单位施工图阶段设计文件为准。

为保证本工程的完整性,业主单位在招标和工程实施阶段,除使用本深化设计的全部设计文件以外,还应包含本深化设计未做修改的,由土建设计单位施工图设计阶段提供的各单体空气调节平面图等设计文件。

4.设计内容:

安防消防控制室设置在1#楼地下一层。消防控制室负责本工程所有单体建筑物加压送风系统的监视和控制。

本工程加压送风控制系统由黄色日皮视频软件下载、余压控制器、泄压阀执行器和系统主机组成。系统控制方式为集散式控制系统。

加压送风控制系统由一台系统主机、五十一台控制器和二百零七套黄色日皮视频软件下载组成。设备的具体数量详见主要设备清单。

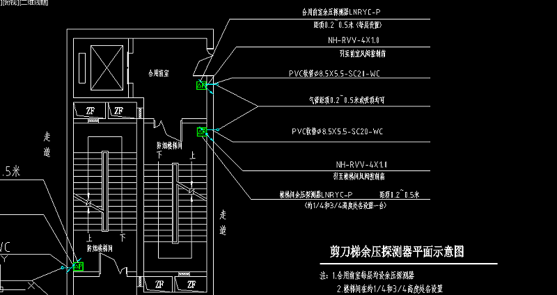
本工程在建筑物内公共区域走道、封闭楼梯间、防烟楼梯间及其前室、消防电梯及其前室或合用前室等处设置黄色日皮视频软件下载,用于检测相应区域两侧的压力差值;加压风机处设置余压控制器,当加压送风机启动后,控制器根据黄色日皮视频软件下载超压/加压动作指令,控制泄压阀动作,确保上述区域的压差值满足规范要求;泄压阀处安装泄压阀执行器,用于将控制器输出的控制信号转换为执行动作,控制泄压阀的开关,实现加压送风系统的风量随系统调节;系统余压监控器安装在安防消防控制室。

系统供电电源:余压控制器、泄压阀执行器、系统主机采用AC 220V供电,黄色日皮视频软件下载采用DC 24V电压供电。其中,黄色日皮视频软件下载采用总线供电方式由余压控制器为其提供电源。

4.1系统功能

4.1.1 黄色日皮视频软件下载:

黄色日皮视频软件下载采用高精度精密MEMS器件和数字化技术,采集机械加压送风区域(防烟楼梯间、独立前室、合用前室、共用前室及消防电梯前室)的压力差值,将该压力差值与传感器内部设定超压值进行比对,判断是否超压,并发出相应超压/加压指令,通过通讯总线传送给余压控制器。

4.4.2 余压控制器:

控制器由电源模块、输入/输出单元、控制单元、通讯模块和保护单元组成。

火灾发生时,机械加压送风机启动,余压控制器根据接收到的压力差值传感器超压/加压指令,控制加压送风系统泄压阀的开关,从而控制加压送风机的送风量,实现上述各部位和区域的机械加压送风系统的自动控制。

正常情况下,余压控制器不工作,只有当火灾发生时,余压控制器接收到机械加压送风机工作后的联动控制信号后方才投入工作。

泄压阀所有的工作状态可在余压控制器和系统主机上显示。控制器自身具有自动和手动控制、检测功能。

4.1.3 泄压阀执行器:

泄压阀执行器根据余压控制器的输出信号,通过泄压阀执行器自动控制泄压阀的开关,实现走廊至前室至楼梯间的压力呈递增分布,满足规范对机械加压送风系统余压值的要求。

泄压阀执行器除具有自动控制功能外还具有手动控制功能,当控制器出现故障时,可以手动操作执行器开启或关闭泄压阀。

4.1.4 余压监控器:

系统主机用于监视和控制本工程所有机械加压送风系统的工作状态和报警信息的处理。系统允许当余压监控器或通讯网络敷设故障时,余压控制器自主工作,满足系统对可靠性指标的要求。

4.2系统供电

机械加压送风控制系统的电源为一级负荷,采用两路电源供电,并在末端设置自动切换装置。余压控制器电源由本区域的消防专用交流电源供电,即直接引自机械加压送风机配电(控制)箱电源。

系统主机除采用两路电源供电外(消防专用电源),

余压控制器输入电源:AC 220V±15%,电源频率:50HZ,额定功率:36W。

余压监控器输入电源:AC 220V±15%,电源频率:50HZ,额定功率:70W。

黄色日皮视频软件下载输入电源:DC 24V,采用总线供电方式,无需另外提供电源。

所有黄色日皮视频软件下载与余压控制器之间采用四总线制。控制器与系统主机的通讯协议为二总线制。

4.3控制方式

泄压阀执行器有自动和手动两种控制方式,其中,自动控制用于正常工作状态,为控制器的主要工作方式;手动控制为非正常工作状态和调试状态,为控制器的辅助工作方式。

自动控制方式时,加压送风控制系统接受火灾自动报警和消防联动控制系统的联锁控制,联动控制信号取自加压送风机配电(控制)箱,火灾发生时,加压送风机启动,系统控制泄压阀开度,以满足相应区域压差值被控制在规范要求的范围内。

4.4设备选择和安装

本工程加压送风控制系统按LNRYC系列疏散通道日皮视频APP安卓安装下载设计,其全系列采集设备、控制设备、执行器和主机设备,均为符合国家相应法律、法规要求的合格产品。同时,系统通过的合理化控制,在满足消防应急工作状态要求的前提下,最大限度地节约了能源消耗和重金属对环境的影响。

安装在室外区域的控制器箱防护等级为IP66。

4.5电缆、导线的选型及敷设

本工程黄色日皮视频软件下载、余压控制器和泄压阀执行器之间的线缆规格有原设计确定,通讯总线选用NH-RVS-4x1.0-SC15。所有类型线路均穿金属保护管敷设。

电力电缆和导线在电气竖井或吊顶内敷设时,均应穿焊接钢管SC保护。

采用有机绝缘耐火电缆为消防设备供电的线路,采用明敷设或吊顶内敷设时,应穿金属管或封闭式金属线槽保护,所穿金属管或金属封闭式线槽应采取防火保护措施。

通讯线路和50V以下供电的控制线路,应采用电压等级不低于交流300/500V的铜芯绝缘导线或铜芯电缆。采用交流220/380V的供电和控制线路,应采用电压等级不低于交流450/750V的铜芯绝缘导线或铜芯电缆。

供电线路和通讯线路设置在地下或湿度大于90%的场所时,线路及接线处应做防水处理。

建筑内的强弱电竖井、管道井与房间、走道等相连的孔洞等,所有管线均应根据《建筑防火封堵技术规程》CECS 154-2003的相关要求做防火封堵处理。

4.6安全接地

消防应急照明和疏散指示系统的接地装置应满足,当建筑物采用共用接地装置时,接地电阻值不大于1.0Ω。

所有电气和电子设备的金属外壳、机柜、机架、金属管、金属线槽等,应采用等电位连接。

安防消防控制室的接地及各种余压监控器、控制器、消防设备等的接地要求,应符合条件设计单位和消防改造设计单位的有关规定。

4.7其它

本深化设计文件应提供给业主单位,并由设计单位确认方可施工。

通讯总线长度超过规范限定值或线路敷设受现场施工条件限制时,应加装光纤光缆和光纤通讯设备等技术措施,以保障通讯系统工作的安全和可靠。

凡与施工有关而又未说明之处,参见《建筑电气安装工程图集》,《建筑电气通用图集》施工,或与设计单位和设备提供商协商解决。

本工程所选设备、材料必须具有国家级检测中心的测试合格证书;供电产品、消防产品应具有相应主管部门的入网许可证。

金属保护管壁厚不应小于1.5mm,直接埋预素土内时应采用镀锌钢管SC。

图中图形、文字符号与施工细节做法请参见<<电气安装工程施工图册>>增订本。

本套图纸仅为本工程加压送风控制系统的深化设计。涉及暖通、给排水、电气和消防等相关专业图纸请参见土建设计单位的设计文件。

5.本次深化设计修改的内容:

5.1修改和特征黄色日皮视频软件下载的安装位置,增加黄色日皮视频软件下载与控制器之间的电气管线。

5.2取消所有黄色日皮视频软件下载与火灾自动报警系统的连接管线。

5.3增加余压控制器和执行器及其之间的连接管线。

5.4增加余压监控器以及控制器之间与余压监控器之间通讯总线的连接管线。

5.5原有加压送风机和泄压阀的安装位置不变。

1

2

3

捕获1

青岛日皮视频在线观看免费电子科技有限公司,专业从事日皮视频APP安卓安装下载设计、研发、生产及销售,参与了数百记项目日皮视频APP安卓安装下载的设计与安装,拥有丰富的项目现场经验,能够为客户免费提供日皮视频APP安卓安装下载方面专业的深化设计、预埋及安装建议。

如需日皮视频APP安卓安装下载方面的产品及技术咨询,可拨打400-812-0910。

咨询热线

400-812-0910
网站地图